

Újbuda Garden
1116 Budapest, Hauszmann Alajos utca 7.
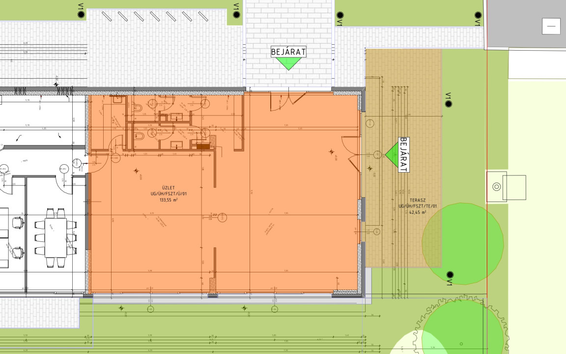
A 11. kerületi - Hauszmann Alajos utca és a Szerémi út sarkán - kiemelkedő láthatóságú és kiváló megközelíthetőségű lokációban kínálunk egy földszinti, utcai bejáratos, teraszos üzlethelységet bérletre 2026. 3. negyedévétől (megállapodás szerint).
Az Újbuda Garden projekt keretében 366 lakás épül, sokféle méretben és elrendezésben. A parkosított környezetben kialakított lakások mellé praktikus tárolók és kényelmes gépkocsi-beállók is tartoznak a teremgarázsban, mindez Újbuda egyik legkedveltebb környékén zöld nyugalomban és városi kényelemben.
Az Újbuda Garden tökéletes helyen, a város pezsgő szívéhez közel helyezkedik el, ahol a BME és az ELTE kampuszai könnyedén elérhetők, továbbá pár perc sétára rengeteg busz- és villamosmegálló található, így a belváros is pillanatok alatt megközelíthető.
Bérbeadó területek:
Bérleti díj (m2/hó+Áfa): € 35.00
Terasz: 42,45 m2
Terasz bérleti díj (m2/hó+Áfa): € 17.50
Min. bérleti idő: 5 év
Közös költség: 57.000 Ft
Elérhetőség: Q3 2026.
Kiépítés: megállapodás szerint
Az üzlethelyiséghez 2000 m3/óra zsíros elszívás alakítható ki, mely így melegkonyhás tevékenységre is alkalmas.
Ajánlatkérés
Írjon üzenetet!
Biggeorge Property
Bécsi Corner Irodaház
H-1023 Budapest, Lajos u. 28-32.
Tel: +36 1 225 2525
Bérbeadás
Tel: +36 70 454 3186

